Bed icon  2  Bath icon  1

2 bed House - Detached Sold Subject to Contract
Church Road, Hinton Waldrist
£450,000

  • arrow icon Detached mid 20th Century house
  • arrow icon Extension or development opportunity subject to planning
  • arrow icon Rare unspoilt village with first class connections
  • arrow icon 2 Reception rooms & 2 Bedrooms (formerly 3 beds)
  • arrow icon An accessible price point for a detached property
  • arrow icon Expansive private driveway
  • arrow icon 0.271 acre plot
  • arrow icon Shops and facilities in neighbouring villages
  • arrow icon Oxford c.10.5miles Abingdon c.9.9 miles
  • arrow icon Didcot Parkway Railway Station c.14.7miles
A MID 20th CENTURY DETACHED HOUSE OFFERING MUCH POTENTIAL SET IN A GENEROUS PLOT

HINTON WALDRIST
Oxford c.10.5miles Didcot Rail Station c.14.7miles Abingdon c.9.9 miles

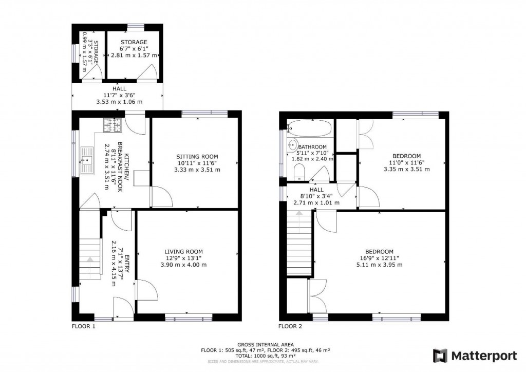
A very special quiet and friendly village in which to live. An ideal chance to upgrade and extend (subject to planning) this detached house on a c. 0.271 acre site OR to develop a further property on site (subject to planning). The property currently comprises a 'social' kitchen space, living room on the ground floor. Two store rooms are connected to the main structure at the rear of the property. 2 (converted from 3) Bedrooms, 1 bathroom on the first floor. Private gardens and an expansive driveway. Co-op supermarket within c.1 mile. Sublime walks from the village. (TOTAL FLOOR AREA: c.1000 sq ft)

GUIDED AT £450,000

Contact: Gavin West
(t) 01865 510000
(e) gavin@west-tpc.co.uk

Floorplans For Church Road, Hinton Waldrist Floorplans For Church Road, Hinton Waldrist Floorplans For Church Road, Hinton Waldrist
EPC For Church Road, Hinton Waldrist
X

X

Viewing Request