Bed icon  4  Bath icon  2

4 bed House - Detached For Sale
Windlass Court, Station Road, Grove, Wantage
£630,000

  • arrow icon A CONTEMPORARY COLLECTION OF FIVE CUSTOM BUILD HOMES COMING SOON
  • arrow icon A development by renowned Fourthwright Design & Construction
  • arrow icon Internal space customisation and external cladding choices
  • arrow icon Featuring air source heat pumps & triple glazing
  • arrow icon Featuring Mechanical Ventilation with Heat Recovery
  • arrow icon Featuring solar photovoltaic panels
  • arrow icon Featuring electric vehicle charging
  • arrow icon All complimented by beautiful interior detailing
  • arrow icon An exclusive small enclave of 21st Century detached houses.
  • arrow icon Oxford c. 17 miles, Didcot Parkway Station c.9 miles, Wantage c. 2 miles.
High quality homes featuring thoughtful, meticulous design that minimises energy consumption, creating healthy, comfortable living environments with low running costs and greater energy security from fluctuating energy prices. Designed for a 21st Century world & lifestyle.

BETWIXT WANTAGE & GROVE
Oxford c. 17 miles Didcot Parkway Station c.9 miles

The soon to be released Windlass Court development is to bring five 'Custom Build' homes to a special location between Wantage & Grove.
A new Custom Build development giving homebuyers the opportunity to shape key parts of their future home through a managed and professionally delivered customisation process.
Windlass Court is an exclusive collection of five detached, 3-storey Custom Build homes by
Fourthwright Design & Construction offering a creative route to home ownership for buyers who
want more input into the design and specification of their home, without taking on the
complexity of a traditional Self Build.
At Windlass Court, homebuyers will be able to choose from an agreed range of options
expected to include typology, layout, external finishes and internal personalisation, while the
build itself is carried out by Fourthwright Design & Construction through a fully managed process.

Windlass Court has been designed for buyers looking for a more individual home, with
meaningful choices built into a clear and structured buying journey. The development is also
intended to appeal to buyers who value energy efficiency, comfort and build quality, with the
homes designed to Passivhaus principles by a certified passive house designer.

The homes will be built using timber frame construction, with features including triple glazing,
air source heat pumps, Mechanical Ventilation with Heat Recovery, solar photovoltaic panels
and electric vehicle charging. Preliminary modelling indicates the homes are expected to use
significantly less energy for heating and hot water than a typical new build, although all figures
remain indicative and subject to final design and as-built verification.

GUIDE PRICES at Windlass Court range from £630,000 to £995,000, depending on plot and
customisation. See accompanying Windlass Court website link to sign up for more details.

Contact: Gavin West
(t) 01865 510000 (e) gavin@west-tpc.co.uk

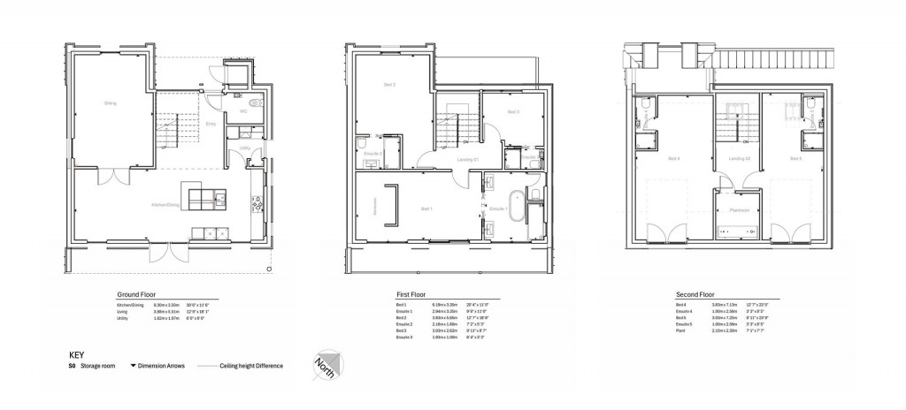
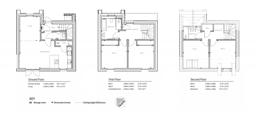
Floorplans For Windlass Court, Station Road, Grove, Wantage Floorplans For Windlass Court, Station Road, Grove, Wantage Floorplans For Windlass Court, Station Road, Grove, Wantage Floorplans For Windlass Court, Station Road, Grove, Wantage Floorplans For Windlass Court, Station Road, Grove, Wantage
X

X

Viewing Request